首  页 公司简介 产品展示 产品目录 联系我们 新闻中心 电子邮局
 
管道设备系列
  洗眼器
  视镜
  阻火器
混合设备系列
  喷射混合器
  静态混合器
  汽水混合器
  混合机
  搅拌机
过滤设备系列
  Y/T型篮式过滤器
  反冲洗过滤器
  自清洗过滤器
  过滤器
  空气过滤器
  高效磁式过滤器
  离子交换器
专用设备
  喷射器
  捕捉器/计量箱/脱气塔
  加药装置
  除尘器
  点阀箱
  取样冷却器
  在线式采样器
  密闭式采样器
  罐下采样器
  消音器
  排水器
  硫封器
 
 
罐下采样器图纸

采样器 | 密闭采样器 | 罐下采样器取样冷却器 加入时间:2017-8-20 16:49:31  点击:
采样器可分为浮筒(球)型和折叠型两大类,按储罐容积(m3)或划分为:50、100、200、300、400、500、700、1000、2000、3000、4000、5000、7000、10000、20000、50000、100000。
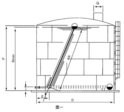
浮筒型:CYQG-A(图一)
此结构主要由浮筒(浮球)、主支撑、辅助支撑、罐外接管、采样管球阀、回油管球阀,采样管、回油管,金属软管,手摇式手动泵等组成。由浮筒提供浮力。
如图-所示:
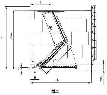
折叠型:CYQG-B(图二)
此结构主要由折叠式支撑管、主支撑、辅助支撑、罐外接管、采样管球阀、针阀、回油管球阀、采样管、回油管、金属软管、手摇式手动泵等组成,一般由浮顶或内浮顶提供浮力。特点:支撑管及上采样管分为两段,占用罐内空间小。
如图二所示:
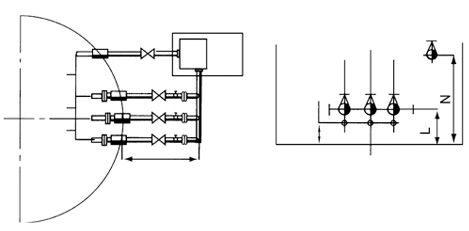
罐外接管部分示意图
 
[ 其它相关文章 ]
 
南通沃尔驰石化工程有限公司 地址:启东市汇龙镇中央河中路691号 邮编:226200
电话:0513-83325673 传真:0513-83119878 手机:13862978163
http://www.nt-bw.com E-mail:13862978163@126.com 采样器 | 密闭采样器 | 罐下采样器取样冷却器